この条件で探す
栃木県
茨城県対象
地図から探す

備考:【リフォーム完成】 秘密基地はすぐ隣に。趣味全開の離れライフ。

【おすすめポイント】
〇土地は広々136坪あります
◯全室南向きで日当たりも風通しも良好
〇家族とのコミュニケーションをとりやすいリビングイン階段
〇南向バルコニーで洗濯物も気持ちよく干せます
◯納戸やクローゼット、収納スペースたっぷりです!
◯趣味の作業場にも最適な外物置付きです♪
お気軽にお問合せください!

【リフォーム内容】
■外壁塗装
■防蟻工事(施工後5年間保証)
■水回り新品交換(キッチン・浴室・トイレ2か所)
■クロス張替え
■庭整地
■建具一部新品交換
■フローリング一部重ね張り
■ハウスクリーニング

「お客様への3の約束」
①構造上主要な部分の不具合(床下の腐食、建物の傾き等)
②給排水管の故障 漏水
③雨漏りについてお引渡しから2年間の保証があるので安心、誠実敏速に対応します。
※シロアリ防除工事施工保証は、施工後5年間保証します。

所在地 那須塩原市三区町
土地面積 449.92(㎡)/ 136.1(坪)
建物面積 149.04(㎡)/ 45.08(坪)
築年月 1992年
構造・間取り 木造亜鉛メッキ鋼板葺2階建 / 4LDK
種類 居宅
現況・引き渡し 空家 / 相談
設備・駐車場 公営水道, 本下水, 個別LPG
都市計画・用途地域 非線引区域 / 無指定
建蔽容積・容積率 60% / 200%
取引態様 売主
【リフォーム完成】 土地は広々136坪あります。 静かな住環境でのんびり過ごしませんか。 (CG写真となります)
お気軽にお問い合わせください。 お待ちしております。
【リフォーム完成】 キッチンは新品へ交換、対面キッチンにしました。
【リフォーム完成】 リビングに家具をイメージしたCG写真になります(※実際には家具はつきません)
【リフォーム完成】 リビングは南ワイドサッシで明るいリビングです。建具交換、フローリング貼り、クロス・クッションフロア張替えしました。
【リフォーム完成】 ユニットバス新品交換!広々1坪タイプでのんびり入浴ができ、一日の疲れを癒せますよ。
【リフォーム完成】 玄関収納は新品へ交換しました。ハンガーパイプ付きの収納もあるので上着がかけらます。
【リフォーム完成】 1階6帖洋室はフロア貼り、クロス張替え、建具(扉と収納)を交換しました。
【リフォーム完成】 LIXIL製洗面台に新品交換しました クロス・クッションフロア張替え、クリーニングを行いました。
【リフォーム完成】 LIXIL製トイレに新品交換しました。 クロス・クッションフロア張替え、クリーニングを行いました。 リフォームについて詳しく知りたい方はお気軽にお問い合わせください。
【リフォーム完成】 別角度のリビング写真です。
【リフォーム完成】 2階東側居室は和室から洋室へ変更 クロス張替え、床はクッションフロアを貼りました。
【リフォーム完成】 2階西側居室はクロスを張替えしました。
【リフォーム完成】 2階中居室はクロスを張替え、ハンガーパイプを新設しました。
【リフォーム完成】 物置は床、天井、壁を塗装しました。
【リフォーム完成】 森の中で佇む住まいでのんびりスローライフを楽しみませんか。
「お客様への3の約束」 (1)構造上主要な部分の不具合(床下の腐食、建物の傾き等) (2)給排水管の故障 漏水 (3)雨漏りについてお引渡しから2年間の保証があるので安心、誠実敏速に対応します。
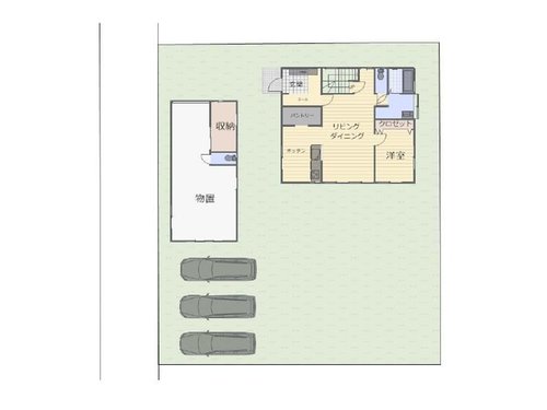
【駐車場イメージ図】 並列3台駐車可能です! お友達やご両親が来ても駐車場に困りません。
【リフォーム完成】 新しく設置したドアホンはカラーモニター付きです。留守中の来客も記録できるので防犯面でも安心ですね。
周りはたくさんの緑に囲まれています。 紅葉と落ち葉で四季を感じる、隠れ別荘のような住まいでゆったりとした時間が流れます。
周りはたくさんの緑に囲まれています。 紅葉と落ち葉で四季を感じる、隠れ別荘のような住まいでゆったりとした時間が流れます。
足場を組んで外壁・屋根塗装をしました。 しばらくメンテナンスの必要がないので安心して長く住めますね。
買取り
無料査定/
お問い合わせ
弊社の
新型コロナ
対策について
夢に寄り添う
あなたを
求めています /求人情報