この条件で探す
栃木県
茨城県対象
地図から探す

備考:年内成約限定・年末決断の最終価格でご案内中!現地できっと驚く家です
【フルリフォーム】家族に嬉しい広々38坪4LDK+3台駐車カーポート付き

【近隣アクセス】
○清原工業団地まで18分、芳賀工業団地まで17分、
真岡市長田工業団地まで26分、真岡中心地まで20分

【特徴】
○リビングと1F廊下の床はペット専用のクッションフロアを使用、
消臭機能付き、傷がつきにくい、滑りにくいのでペットと一緒に過ごすのも快適です
○ペット専用スペースも確保しています

【リフォーム内容】
●外壁塗装、屋根カバー工法
●駐車場土間打ち
●カーポート(2台分)設置
●給湯器交換
●キッチン・風呂・トイレ・洗面台交換
●床一部クッションフロア貼り・全室壁天井クロス張替
●リビング新品エアコン設置、火災報知器設置
●照明・インターフォン交換、クリーニング等

「お客様への3の約束」
(1)構造上主要な部分の不具合(床下の腐食、建物の傾き等)
(2)旧排水管の故障 漏水
(3)雨漏りについてお引渡しから2年間の保証があるので安心、誠実敏速に対応します。

所在地 芳賀郡益子町七井①
土地面積 151.45(㎡)/ 45.81(坪)
建物面積 125.03(㎡)/ 37.82(坪)
築年月 2004年11月
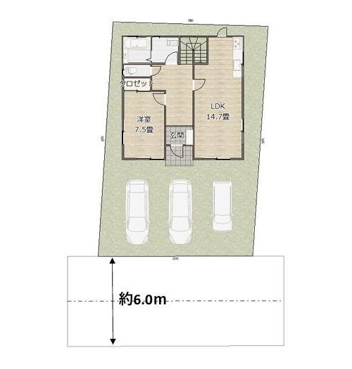
構造・間取り 木造スレート葺2階建 / 4LDK+WIC
種類 居宅
現況・引き渡し 空家 / 相談
設備・駐車場 公営水道, 個別LPG / 駐車場あり
都市計画・用途地域 非線引区域 / 無指定
建蔽容積・容積率 60% / 200%
取引態様 売主
【リフォーム完成】 クロス・クッションフロア張替えを行いきれいになりました。 実際の写真です。 素敵な照明付きなのでこのあたりにダイニングテーブルを置くのもいいですね。
ダイニングテーブルやソファリビングに家具をイメージしたCG写真になります(※実際には家具はつきません)の配置を考えるのも楽しみですね。 リビングと1F廊下の床はペット専用のクッションフロアを使用しているので、ペットと一緒に過ごすのも快適です♪
広々とした4LDKの間取りです。ペットとゆったり暮らせる家をコンセプトにリフォームします。
【外壁塗装イメージ図】 外壁をガルバリウムを張ったイメージ画像です。屋根カバー工法完了しました。 駐車場コンクリート、カーポート設置工事完了しました。
【リフォーム完了】 タカラスタンダード製の1坪ユニットバスを設置しました。 足を伸ばして疲れを癒せます。 浴室換気乾燥機も付いているので、天気が悪い日も安心。
【リフォーム完了】 洗面所は洗面台交換、壁天井クロス張替え、床クッションフロア張替え、クリーニングを行いました。 洗面所には窓も付いているので、気軽に換気ができますよ。
【イメージ画像】駐車場は5台停まれる広さです。来客時も困りませんよ。カーポートも新規設置したので大事なお車も安心です
【リフォーム完了】 クロス・クッションフロア張替えを行いきれいになりました。 1階廊下には収納があります。 お子様のものや趣味のものを置くスペースにするのもいいですね。
【リフォーム完了】 クロス・クッションフロア張替えを行いきれいになりました。ダイニングテーブルやソファの配置を考えるのも楽しみですね。
【リフォーム完了】 タカラスタンダード製のキッチンを交換しました。
【リフォーム完了】 クロス・クッションフロア張替えを行いきれいになりました。 ダイニングテーブルやソファの配置を考えるのも楽しみですね。
【リフォーム完了】 1階7.5帖洋室です。 クロス・クッションフロア張替えできれいになりました。
外壁塗装、屋根カバー工法完了。 駐車場コンクリート、カーポート設置工事完了しました。 緑豊かな住環境で、すぐ近くに公園もあります。
\工業団地まで車で30分以内!通勤にも◎な静かな戸建て/ ・清原工業団地入口 車18分 ・芳賀工業団地 車17分 ・真岡市長田工業団地入口 車25分 ・茂木市役所 車17分 ・真岡市役所 車20分
2階洋室に家具をイメージしたCG写真になります(※実際には家具はつきません)
【リフォーム完了】 2階10.5帖洋室です。 クロス・クッションフロア張替えできれいになりました。 ウォークインクロゼット付きで寝室にぴったりなお部屋はアクセントクロスでワンランク上の空間を演出します。
【リフォーム完了】 2階8帖洋室です。 クロス・クッションフロア張替えできれいになりました。 大きめのクロゼットがついているので洋服や小物を収納してお部屋をスッキリ使えます。
【リフォーム完了】 2階7.5帖洋室です。 クロス・クッションフロア張替えできれいになりました。 大きなクロゼットがついているので洋服や小物を収納してお部屋をスッキリ使えます。
「お客様への3の約束」 (1)構造上主要な部分の不具合(床下の腐食、建物の傾き等) (2)旧排水管の故障 漏水 (3)雨漏りについてお引渡しから2年間の保証があるので安心、誠実敏速に対応します。
買取り
無料査定/
お問い合わせ
弊社の
新型コロナ
対策について
夢に寄り添う
あなたを
求めています /求人情報