この条件で探す
栃木県
茨城県対象
地図から探す

備考:【内覧会開催】【平屋】【3月31日まで現況販売!】東南角地で日当たり良好

売主直販\毎日予約制内覧会開催(当日予約OK)/
※週末は混み合うため事前予約をおすすめします

●おすすめポイント●
・街道沿いのけやき並木が美しい街並み
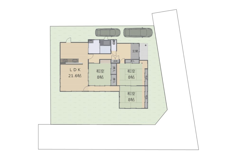
・LDKは広々21.6帖!隣の和室を繋げたら約30帖の大空間!
・駐車場は2台可能。1台はカーポート付きです
・人気の暮らしやすい平屋住宅です

・きれいにハウスクリーニングを行います
・テレワーク、在宅勤務にも
・ご自身で住みやすいようにリノベーションも可能
・リフォームのご相談も承ります

お気軽にお問合せください

■資金計画のご相談(10分~)
■不動産買取査定のご相談(10分~)

無料電話かメールでお問合せくださいませ。

所在地 鹿沼市坂田山
土地面積 297.26(㎡)/ 89.92(坪)
建物面積 121.18(㎡)/ 36.66(坪)
築年月 1990年9月
構造・間取り 木造瓦葺平屋建 / 3LDK
種類 居宅
現況・引き渡し 空家 / 相談
設備・駐車場 公営水道, 本下水, 個別LPG / 駐車場あり
都市計画・用途地域 市街化区域 / 1種低層
建蔽容積・容積率 40% / 60%
取引態様 売主
人気の平屋住宅です。駐車場は2台付き。角地で駅まで徒歩圏内です。そのままでまだまだお住まいいただけます。
3LDK、土地面積297.26㎡、建物面積121.18㎡  気になる方はお気軽にお問合せ下さい。お待ちしております。
【駐車場の配置イメージ図です】 縦列で2台駐車可能です。1台は安心のカーポート付きです。駐車場拡張工事のご相談も承ります。お気軽にどうぞ。
リフォームプラン【ステージ1】のご提案です。 追加175万円でトイレ・洗面新品交換、クロス張替え、防蟻工事等々のリフォームが可能です。リフォームに関してのご相談もお気軽にお問い合わせください♪
リフォームプラン【ステージ2】のご提案です。 追加450万円で水回り新品交換、クロス張替え、外壁・屋根塗装等々のリフォームが可能です。リフォームに関してのご相談もお気軽にお問い合わせください♪
リフォーム前の物件でも、リフォーム費用を含めた価格で住宅ローンを組める場合がございます。 詳細はお気軽にお問い合わせください♪
【ハウスクリーニングできれいになりました】 LDKは広々21帖あるので家具を置いてもゆとりある広さです。 家全体が木のぬくもりに包まれるような落ち着いたつくりになっています。
【ハウスクリーニングできれいになりました】LDKは広々21帖あるので家具を置いてもゆとりある広さです。 南側に大きな掃き出し窓があるので明るい光が差し込む暖かいリビングになります。
【ハウスクリーニングできれいになりました】対面式キッチンで家族の様子を見ながらお料理できる間取りが嬉しいですね。 キッチンスペースは広くなっており、食器棚等を置いてもゆとりある広さがあります。
【ハウスクリーニングできれいになりました】 リビング隣の8帖和室です。 客間としてもお子様の遊び場としても使い勝手がいいお部屋ですね。 い草の香る空間でゆったりお昼寝するのもいいですね。
【ハウスクリーニングできれいになりました】 和室と隣り合って、リビングにつながる縁側があります。 光が差し込む暖かい空間でのんびりくつろげそうですね。
【ハウスクリーニングできれいになりました】8帖和室です。 二間続きになっているので襖を開けると16帖の広い空間が広がります。
【ハウスクリーニングできれいになりました】 8帖和室です。 二間続きになっているので襖を開けると16帖の広い空間が広がります。
【ハウスクリーニングできれいになりました】 ゆったり足が伸ばせる広さで1日の疲れを癒します。 リフォームのご相談も承ります、お気軽にお問い合わせください。
【ハウスクリーニングできれいになりました】 洗面室も広めの窓があり、換気がしやすいのはもちろん明るい空間が気持ちいいですね。 リフォームのご相談も承ります、お気軽にお問い合わせください。
【ハウスクリーニングできれいになりました】 トイレも木のぬくもりに包まれ落ち着いた空間になっています。 リフォームのご相談も承ります、お気軽にお問い合わせください。
【ハウスクリーニングできれいになりました】和の雰囲気と木の温もりがある玄関がお出迎えしてくれます。
人気の平屋住宅です。駐車場は2台付き。角地で駅まで徒歩圏内です。そのままでまだまだお住まいいただけます。
買取り
無料査定/
お問い合わせ
弊社の
新型コロナ
対策について
夢に寄り添う
あなたを
求めています /求人情報