この条件で探す
栃木県
茨城県対象
地図から探す

備考:【内覧会開催】【平屋】【5月31日まで現況販売】
人気の宇都宮市峰町エリア

\毎日予約制内覧会開催(当日予約OK)/
※週末は混み合うため事前予約をおすすめします

【おすすめポイント】
○人気の宇都宮市峰町エリア
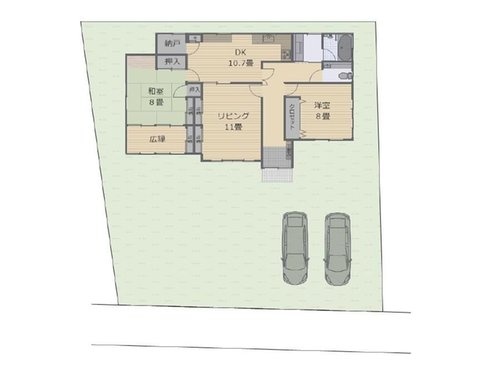
○敷地63坪に建つ暮らしやすい平屋です
○ベルモールまで1.5km、気軽にショッピングが楽しめます
○車は2台駐車可能、増設工事可能です

・きれいにハウスクリーニングを行います
・リモートワーク、在宅勤務にも
・ご自身で住みやすいようにリノベーションも可能
・リフォームのご相談も承ります
お気軽にお問合せください

リフォーム前の物件でも、リフォーム費用を含めた価格で住宅ローンを組める場合がございます。
詳細はお気軽にお問い合わせください♪


■資金計画のご相談(10分~)
■不動産買取査定のご相談(10分~)

無料電話かメールでお問合せくださいませ。

【営業日/時間】年中無休/9:00~18:00

テレワーク 在宅ワーク 在宅勤務 リモートワーク

所在地 宇都宮市峰町
土地面積 309.02(㎡)/ 93.47(坪)
建物面積 82.14(㎡)/ 24.85(坪)
築年月 1963年7月
構造・間取り 木造亜鉛メッキ銅板ぶき1階建
種類 居宅
現況・引き渡し 居住中 / 相談
設備・駐車場 公営水道, 本下水, 都市ガス / 駐車場あり
都市計画・用途地域 市街化区域 / 1種住居
建蔽容積・容積率 60% / 160%
取引態様 代理
人気の宇都宮市峰町エリア、好立地です! 敷地63坪に建つ暮らしやすい今大人気の平屋です。
 お気軽にお問い合わせください。お待ちしております。
リフォームプランもご提案できます! クロス張替え、水回り新品交換他、リフォームのご相談承ります。 リフォーム費用も含めて住宅ローンの低い金利で組める場合がございますので、お気軽にお問い合わせください♪
リフォーム前の物件でも、リフォーム費用を含めた価格で住宅ローンを組める場合がございます。 詳細はお気軽にお問い合わせください♪
【駐車場イメージ図】 駐車場の車配置イメージ図です。 車は並列で2台駐車可能です。 駐車場増設工事も可能です、詳しくはお問い合わせください。
【ハウスクリーニング完了】 11帖のリビングです。作り付けの収納があり、飾り棚としても使えますね。南のはきだしの窓から日差しが降り注ぐ明るいリビングです。
【ハウスクリーニング完了】 L字型のお洒落なキッチンです。冷蔵庫も同じカラーで揃えたお洒落なシステムキッチンです。ガスオーブンも付いて、お料理の腕も上がりそうですね。
【ハウスクリーニング完了】 大きな窓の付いた明るいユニットバスです。大きな浴槽は親子で入っても余裕の広さです。楽しいバスタイムを過ごせます。
【ハウスクリーニング完了】 ワイドスパンの大きな洗面化粧台です。3人横並びで歯磨きしても余裕の広さです。朝の渋滞知らずです。
【ハウスクリーニング完了】 手洗い場や手摺も付いた明るく清潔なトイレです。棚も付いているので、観葉植物など飾ってリラックスできる場所になります。
【ハウスクリーニング完了】ダイニングです。奥のキッチンからの繋がりで配膳も楽チンです。食器棚も作り付けで、お皿やカップ沢山収納できます。
【ハウスクリーニング完了】 床の間や広縁の付いた昔ながらの和室です。収納も沢山あるのでお布団は勿論、季節の物まで沢山整理整頓できますね。
【ハウスクリーニング完了】 8帖の洋室です。壁一面のクローゼットがあるのは大変嬉しいです。お洋服も家族分かける事ができますね。
【ハウスクリーニング完了】 横開きでガラス窓が沢山の明るい玄関です。ベビーカーや車椅子もそのまま入れる広さです。
【ハウスクリーニング完了】 ダイニングキッチン横に納戸があります。高窓が付いて明るい納戸です。思い出の品やゴルフバッグ、スーツケースなど沢山収納できますね。
【庭木を整備しました】 庭木を整備して綺麗になりました。家庭菜園やドッグランなど使い方は様々です。
1台分のカーポートが付いた広々とした敷地です。敷地面積は60坪以上!お庭でBBQやビニールプールなどで遊ぶ事もできますね。
1台分のカーポートが付いた広々とした敷地です。敷地面積は60坪以上!お庭でBBQやビニールプールなどで遊ぶ事もできますね。
リフォームプラン【ステージ1】のご提案です。 追加180万円でトイレ・洗面新品交換、クロス張替え、防蟻工事等々のリフォームが可能です。 リフォームに関してのご相談もお気軽にお問い合わせください♪
リフォームプラン【ステージ2】のご提案です。 追加500万円で水回り新品交換、クロス張替え、外壁・屋根塗装等々のリフォームが可能です。 リフォームに関してのご相談もお気軽にお問い合わせください♪
買取り
無料査定/
お問い合わせ
弊社の
新型コロナ
対策について
夢に寄り添う
あなたを
求めています /求人情報