この条件で探す
栃木県
茨城県対象
地図から探す

備考:買物5分の便利さと、陽だまりサンルームのある生活 省エネ平家建て住宅

【おすすめポイント】
・徒歩5分圏内に スーパー(オータニ)、コンビニ
・ゆったり過ごせる人気の 平屋建!敷地は50坪!
・サンルーム付きで洗濯も趣味空間も快適に

【リフォーム内容】
◯トイレ・洗面所:クッションフロア張替え
◯クロス張替え
◯照明取り付け
◯ハウスクリーニング

「お客様への3の約束」2年間保証があるので安心!誠実敏速に対応いたします。

・テレワーク、在宅勤務にも
・ご自身で住みやすいようにリノベーションも可能
・リフォームのご相談も承り

お気軽にお問合せください♪

所在地 さくら市馬場
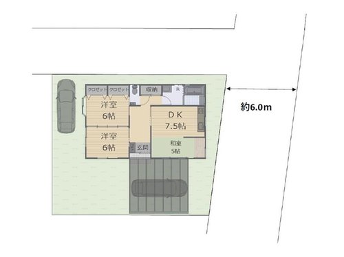
土地面積 167.32(㎡)/ 50.61(坪)
建物面積 64.41(㎡)/ 19.48(坪)
築年月 2009年3月
構造・間取り 軽量鉄骨スレートぶき平屋建 / 3DK
種類 居宅
現況・引き渡し 空家 / 相談
設備・駐車場 公営水道, 本下水, 個別LPG / 駐車場あり
都市計画・用途地域 非線引区域 / 1種中高
建蔽容積・容積率 60% / 200%
取引態様 売主
人気の平屋で生活動線がシンプル、階段なしで将来も安心。 又北東角地で開放感ある立地です。
お気軽にお問い合わせください
【リフォーム前】 クロス張替え、照明取付、クリーニング等をこれから行ってきれいになります。 北東の窓からの柔らかな朝日で快適に調理ができるキッチンです。
【リフォーム前】 クロス張替え、照明取付、クリーニング等をこれから行ってきれいになります。 キッチンから和室まで見渡せる安心の空間設計ですね。
【リフォーム前】 クロス張替え、照明取付、クリーニング等をこれから行ってきれいになります。 2面クローゼットで季節物から日用品までスッキリ整理できます。
【リフォーム前】 クロス張替え、照明取付、クリーニング等をこれから行ってきれいになります。 安全に配慮した手すり付きで家族みんなにやさしい住まいです。
【リフォーム前】 クロス張替え、照明取付、クリーニング等をこれから行ってきれいになります。 出窓から柔らかな光が入り、室内が明るく心地よい空間に。
【リフォーム前】 照明取付、クリーニング等をこれから行ってきれいになります。 手すり付きで安心して入浴できる安全設計が嬉しいですね。
【リフォーム前】 クロス・クッションフロア張替え、照明取付、クリーニング等をこれから行ってきれいになります。 伸びるシャワーヘッド付きで洗面・掃除がとても便利です。
屋根付き・囲われたサンルームで雨の日でも洗濯が安心ですね!
【駐車場イメージ図】 駐車場の車配置イメージ図です。 2台駐車可能です。 1台分は玄関とつながるカーポート付きなので雨の日も快適。
【クロス選べます】 今ならクロス選べます! クロスによってお部屋の雰囲気もガラリと変わります、お早めにご相談ください! ※リフォーム進捗状況により、予告なく終了する場合がございます。ご了承ください。
買取り
無料査定/
お問い合わせ
弊社の
新型コロナ
対策について
夢に寄り添う
あなたを
求めています /求人情報