この条件で探す
栃木県
茨城県対象
地図から探す

備考:土地247坪 この広さ、この中身!フルリフォームで生まれ変わる4LDK

【おすすめポイント】
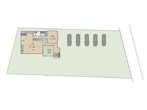
■土地は広々247坪!車5台駐車可能
■高根沢町役場750m
■JR宝積寺駅1.4km
■リオンドール徒歩10分
■スーパー、コンビニ、役場、病院などの施設が2km圏内で暮らしやすい立地

【リフォーム内容】
○外壁塗装
○外構工事
○防蟻工事(施工後5年間保証)
○キッチン・風呂・洗面台・トイレ:新品交換
○クロス張替え
○クッションフロア張替え
○間取り変更
○ハウスクリーニング

「お客様への3の約束」2年間保証があるので安心!誠実敏速に対応いたします

・リモートワーク、在宅勤務にも
・ご自身で住みやすいようにリノベーションも可能

お気軽にお問合せください♪

所在地 塩谷郡高根沢町石末
土地面積 817.17(㎡)/ 247.19(坪)
建物面積 164.43(㎡)/ 49.74(坪)
築年月 1983年2月
構造・間取り 木造瓦ぶき2階建て / 4LDK
種類 居宅
現況・引き渡し 空家 / 相談
設備・駐車場 公営水道, 個別浄化槽, 個別LPG / 駐車場あり
都市計画・用途地域 調整区域 / 無指定
建蔽容積・容積率 60% / 200%
取引態様 売主
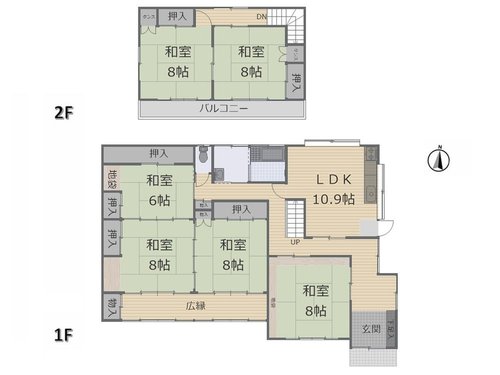
【間取り変更後リビングイメージ画像】 リビングに家具を配置したイメージ画像です。 約30帖のLDKは家具を置いてもゆとりある広さがあります。
※間取り変更を行うので、現況と間取り図が異なる場合は現況を優先します。 広いLDKへ間取り変更します!お気軽にお問い合わせください。
【同仕様イメージ画像】 新品交換するキッチンの同仕様イメージ画像です。 画像は当社で実際にリフォーム施工した事例になります(メーカー、色等は異なる場合がございます)。
【同仕様イメージ画像】 新品交換するユニットバスの同仕様イメージ画像です。 画像は当社で実際にリフォーム施工した事例になります(メーカー、色等は異なる場合がございます)。
【外壁塗装イメージ画像】 外壁を塗装したイメージ画像です。 これから外壁塗装をするので今ならお客様好みの色を選べます!
【間取り変更後リビングイメージ画像】 リビングに家具を配置したイメージ画像です。 約30帖のLDKは家具を置いてもゆとりある広さがあります。
【同仕様イメージ画像】 新品交換する洗面台の同仕様イメージ画像です。 画像は当社で実際にリフォーム施工した事例になります(メーカー、色等は異なる場合がございます)。
【同仕様イメージ画像】 新品交換するトイレの同仕様イメージ画像です。 画像は当社で実際にリフォーム施工した事例になります(メーカー、色等は異なる場合がございます)。
【駐車場イメージ図】 駐車場の車配置イメージ図です。 土地が広いので車は5台ゆとりをもって駐車可能です。
土地が247坪あるので、車もゆとりを持って駐車可能です! お友達とBBQを楽しんだり、ドッグランや家庭菜園を楽しむなど、趣味が広がりますね♪
土地247坪に建つ6SLDKです。 スーパーや駅・学校などが2km圏内にある便利な立地です。 これから内外装フルリフォームしていきます!
【クロス選べます】 今ならクロス選べます! クロスによってお部屋の雰囲気もガラリと変わります、お早めにご相談ください! ※リフォーム進捗状況により、予告なく終了する場合がございます。ご了承ください。
「お客様への3の約束」 (1)構造上主要な部分の不具合(床下の腐食、建物の傾き等) (2)給排水管の故障 漏水 (3)雨漏りについてお引渡しから2年間の保証があるので安心、誠実敏速に対応します
買取り
無料査定/
お問い合わせ
弊社の
新型コロナ
対策について
夢に寄り添う
あなたを
求めています /求人情報