この条件で探す
栃木県
茨城県対象
地図から探す

備考:【2世帯で住める大きな邸宅!】子育てや介護、お互いにサポートできますよ!

●おすすめポイント●
・小俣駅まで徒歩10分以内の好立地
・小学校まで徒歩約4分で安心
・スーパーや病院も近くでとても暮らしやすい街です
・2世帯・3世帯でも住める設備の整った邸宅です

○リフォーム内容○
・クロス張替え
・クッションフロア張替え
・ハウスクリーニング等

「お客様への3の約束」2年間保証があるので安心!誠実敏速に対応いたします。

・テレワーク、在宅勤務にも
・ご自身で住みやすいようにリノベーションも可能
・リフォームのご相談も承ります
お気軽にお問合せください

■資金計画のご相談(10分~)
■不動産買取査定のご相談(10分~)

所在地 足利市小俣町
土地面積 246.52(㎡)/ 74.57(坪)
建物面積 142.00(㎡)/ 42.96(坪)
築年月 2010年11月
構造・間取り 木造かわら葺2階建 / 6LDK
種類 居宅
現況・引き渡し 空家 / 相談
設備・駐車場 公営水道, 本下水, 個別浄化槽 / 駐車場あり
都市計画・用途地域 市街化区域 / 1種住居
建蔽容積・容積率 60% / 200%
取引態様 売主
【家具配置イメージ画像】 2階LDKに家具等を設置した際のイメージ写真です(実際には家具・家電等は設置されていません)。 家族が自然と集まり会話の弾むリビングになりそうですね。
【クロス張替え・クッションフロア上張り・ハウスクリーニングで綺麗になりました】2階LDKです。キッチン裏のタイル風クロスがまるでカフェのような雰囲気になります。
前面道路から見た外観です。車は4台駐車可能です。交通量も少ないので安心して駐車ができます。屋根付きカーポートや、ガレージも置ける広さです。
気になる方はお気軽にお問合せください。お待ちしております。
【クロス張替え・クッションフロア上張り・ハウスクリーニングで綺麗になりました】1階LDKです。キッチン裏には大容量のパントリーがあるので、冷蔵庫など生活感は見えない工夫がいいですね。
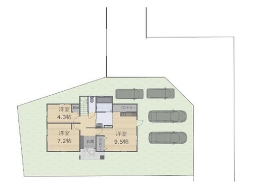
【クロス張替え・クッションフロア上張り・ハウスクリーニングで綺麗になりました】1階7.2帖の洋室です。アクセントクロスで引き締まった印象です。
【クロス張替え・クッションフロア上張り・ハウスクリーニングで綺麗になりました】2階LDKです。天井クロスまでこだわって仕上げました。掃き出し窓から入る日差しで明るいLDKです。
【クロス張替え・クッションフロア上張り・ハウスクリーニングで綺麗になりました】2階キッチンです。カウンターキッチンは上部収納も付いてたっぷりしまう事ができます。
【ハウスクリーニングで綺麗になりました】1階浴室です。キッチンと同系色で揃えた浴室です。大き目の換気窓でカビ対策もばっちりです。
【クロス張替え・クッションフロア上張り・ハウスクリーニングで綺麗になりました】1階洗面所です。クッションフロアは汚れや水に強いものを使用しました。
【クロス張替え・クッションフロア上張り・ハウスクリーニングで綺麗になりました】2階トイレです。1階のトイレとクロスの色を変えました。爽やかな空間になりました。
【クロス張替え・クッションフロア上張り・ハウスクリーニングで綺麗になりました】1階4.3帖の洋室です。趣味の部屋にしたりリモートワーク部屋としてもいいですよね。
【クロス張替え・クッションフロア上張り・ハウスクリーニングで綺麗になりました】2階4.5帖の洋室です。南北に同帖数のお部屋があるので兄弟姉妹のお部屋にぴったりです。
【クロス張替え・クッションフロア上張り・ハウスクリーニングで綺麗になりました】2階6帖洋室です。クローゼットも大容量で洋服や季節物もたっぷり収納できます。
【クロス張替え・クッションフロア上張り・ハウスクリーニングで綺麗になりました】1階キッチン裏のパントリーです。作り付けの棚も付いて、生活感のあるものをまるっと収納できますね。
【クロス張替え・クッションフロア上張り・ハウスクリーニングで綺麗になりました】正面のデザインクロスが目を引きますね。手摺も付いてご高齢の方も安心です。
南向きで明るい日差しが降り注ぐお家です。南向きのお庭があり、ワンちゃんと遊んだり、ビニールプールで遊んだり、2世帯で楽しく過ごせますね♪
【駐車場のイメージ図です】 大きなワゴン車を含め4台駐車可能です。2世帯には嬉しいですよね。
「お客様への3の約束」2年間保証があるので安心!誠実敏速に対応いたします。
買取り
無料査定/
お問い合わせ
弊社の
新型コロナ
対策について
夢に寄り添う
あなたを
求めています /求人情報