この条件で探す
栃木県
茨城県対象
地図から探す

備考:【内覧会開催】【リフォーム完成】敷地120坪×建物72坪の大型5LDK

売主直販\毎日予約制内覧会開催(当日予約OK)/
※週末は混み合うため事前予約をおすすめします

【おすすめポイント】
◯土地は広々120坪
◯車も並列で4台駐車可能
◯吹抜けで開放感たっぷりの30帖LDK
◯ゆとりある大型5SLDK
◯デザイン性の高いアイランドキッチンは
料理のモチベーションがあがりますね
◯広い屋上は視界をさえぎるものがないので、
気持ちいい自分たちだけの世界を楽しめそうですね♪

【リフォーム内容】
■一部クロス張替え
■トイレ新品交換(2箇所)
■ハウスクリーニング

・リモートワーク、在宅勤務にも
・ご自身で住みやすいようにリノベーションも可能
・リフォームのご相談も承ります♪

家族の笑顔があふれる新生活を、ぜひこの住まいで始めてみませんか?

所在地 真岡市堀込
土地面積 397.94(㎡)/ 120.38(坪)
建物面積 201.22(㎡)/ 60.87(坪)
築年月 2017年12月
構造・間取り 木造陸屋根・合金メッキ鋼板葺2階建 / 6LDK+S
種類 居宅
現況・引き渡し 空家 / 相談
設備・駐車場 井戸, 個別浄化槽, 個別LPG / 駐車場あり
都市計画・用途地域 調整区域 / 無指定
建蔽容積・容積率 60% / 200%
取引態様 売主
【リビング家具イメージ画像】 リビングに家具等を設置した際のイメージ写真です(実際には家具・家電等は設置されていません) 家族が自然と集まる空間になりますね。
120坪のゆとりある敷地に洗練されたデザイン住宅の5SLDKです。 アイランドキッチンのある30帖LDKです! 家族の笑顔があふれる新生活を、ぜひこの住まいで始めてみませんか?
作業小屋が付いています。野菜やお米の収納や、趣味の車、バイクの道具部屋、事務所としてもお使いになれます。出入り口にはお洒落なタイルが敷いてあります。
 気になる方はお気軽にお問い合わせください。 お待ちしております。
【家具配置イメージ画像】 屋上に家具を配置したイメージCG画像です(実際に家具は付きません)。 屋上もクリーニングできれいになりました。 広い屋上で視界をさえぎるものがなく気持ちいい空間が広がります。
【リフォーム完了】 一部クロス張替え、クリーニングで綺麗になりました。 吹抜けで明るい光がさしこみ開放感のあるリビングです。
【リフォーム完了】 一部クロス張替え、クリーニングで綺麗になりました。 おしゃれなアイランドキッチンにはオーブンも付いています♪ お料理が楽しくなるキッチンですね。
クリーニングを行いきれいになりました。 足をゆったりと伸ばしてのんびり1日の疲れを癒やせますね。
【リフォーム完了】 一部クロス張替え、クリーニングで綺麗になりました。 洗面室も少し広めにとってあり、家全体がゆとりある間取りになっています。
【リフォーム完了】 トイレは新品交換してきれいになりました。 気持ちよく新生活をスタートできますね。
【リフォーム完了】 一部クロス張替え、クリーニングで綺麗になりました。 吹抜けで開放感のあるリビングになっています。
【リフォーム完了】 一部クロス張替え、クリーニングで綺麗になりました。 1階キッチン横の物入スペースです。整理棚も付いてたっぷり収納できます。ゴミ収集日までの一時置き場としても便利です。
【リフォーム完了】 一部クロス張替え、クリーニングで綺麗になりました。 1階4.6帖の茶室です。 お部屋には丸い窓もついていて、デザイン性の高いおしゃれな茶室になっています。
【リフォーム完了】 一部クロス張替え、クリーニングで綺麗になりました。 1階8.8帖洋室です。 奥にはワークスペースもあります。 仕事や趣味の部屋など、あなたは何の空間にしますか?
【リフォーム完了】 一部クロス張替え、クリーニングで綺麗になりました。 中二階のスキップフロアは、お子様の遊び場や読書スペースなど、使い道を考えるのも楽しみですね。
【リフォーム完了】 一部クロス張替え、クリーニングで綺麗になりました。 2階12帖LDKです。 クロゼットも2箇所ついていて、寝室にもぴったりです。
【リフォーム完了】 一部クロス張替え、クリーニングで綺麗になりました。 2階8帖洋室です。 南側に掃き出し窓がありバルコニーに出入りできるお部屋です。
【リフォーム完了】 一部クロス張替え、クリーニングで綺麗になりました。 2階6帖洋室です。クロゼットも付いているので整理収納してお部屋をスッキリ使えますね。
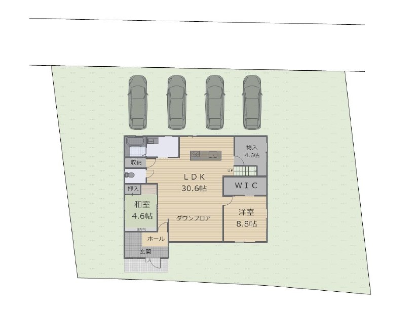
【駐車場イメージ図】 駐車場車配置のイメージ図です。 並列で4台駐車可能です!
120坪のゆとりある敷地に洗練されたデザイン住宅の5SLDKです。 アイランドキッチンのある30帖LDKです! 家族の笑顔があふれる新生活を、ぜひこの住まいで始めてみませんか?
「お客様への3の約束」 (1)構造上主要な部分の不具合(床下の腐食、建物の傾き等) (2)給排水管の故障 漏水 (3)雨漏りについてお引渡しから2年間の保証があるので安心、誠実敏速に対応します。
買取り
無料査定/
お問い合わせ
弊社の
新型コロナ
対策について
夢に寄り添う
あなたを
求めています /求人情報