この条件で探す
栃木県
茨城県対象
地図から探す

備考:【内覧会開催】【リフォーム完成】【住友林業の家】
親×子近隣居のススメ! LDK2・水回り2か所
土地にも建物にもゆとりが欲しい方にお勧めの物件です

売主直販\毎日予約制内覧会開催(当日予約OK)/
※週末は混み合うため事前予約をおすすめします

●おすすめポイント●
・高品質の住友林業施工
・2世帯住宅ですが玄関共有で節税対策になります
・小学校、スーパー近くで子育て環境に最適♪
・各々、納戸や物入など収納力はばっちりです
・築17年ですがまだまだ綺麗です

◯リフォーム内容◯
・全室クロス張替え
・1、2階トイレ新品交換
・モニター付インターフォン新品交換
・給湯器交換
・1階LDKCF上張り
・1、2階浴室シャワーヘッド新品交換
・2階洗面化粧台新品交換
・2階キッチンコンロ
・1階LDK LED照明設置
・ハウスクリーニング他

「お客様への3の約束」2年間保証があるので安心!誠実敏速に対応いたします

所在地 鹿沼市西茂呂
土地面積 231.41(㎡)/ 70.00(坪)
建物面積 161.26(㎡)/ 48.78(坪)
築年月 2008年9月
構造・間取り 木造スレートぶき2階建 / 2SLDK+2SLDK
種類 居宅
現況・引き渡し 空家 / 相談
設備・駐車場 公営水道, 本下水, 都市ガス / 駐車場あり
都市計画・用途地域 市街化区域 / 1種低層
建蔽容積・容積率 50% / 80%
取引態様 売主
【リフォーム後】1階LDKです。クッションフロア上張り、クロス壁・天井張替え、お洒落なLED照明が付いて綺麗になりました。 南向きに掃き出し窓があるので明るい光が差し込むお部屋になります。
住友林業施工の2世帯住宅です。1階は上下の移動がなく過ごしやすいご両親世帯に。2階は若い世帯向きの2LDKになっています。
気になる方はお気軽にお問合せください。お待ちしております。
【リフォーム後】1階LDKです。クッションフロア上張り、クロス壁・天井張替え、お洒落なLED照明が付いて綺麗になりました。 南向きに掃き出し窓があるので明るい光が差し込むお部屋になります。
【リフォーム後】1階キッチンです。 床CF上張り、キッチンクリーニングで綺麗になりました。 対面式キッチンでリビングとのコミュニケーションが取りやすいキッチンです♪
1階浴室です。専門業者によるクリーニングを行いお引き渡しいたします!きれいな浴室でくつろぎの時間をお過ごしください!
【リフォーム後】1階洗面室です。 クッションフロア上張り、洗面台クリーニングで綺麗になりました。 2階にも同等品質の洗面台があります。四面鏡はお子様の歯磨きなどにも便利です。
【リフォーム後】 1階2階ともに新品交換しました。クロス張替え、CF上張りで綺麗になりました。
【リフォーム後】1階7.2帖の洋室です。 クロス張替えで綺麗になりました。 南向きに掃き出し窓があるので明るい光が差し込むお部屋になります。部屋干しポールが付いてとても便利です。
【リフォーム後】2階LDKです。 クロス張替えして綺麗になりました。バルコニーに出られる掃き出しの窓と西側の窓で気持ちの良い風が通ります。
【リフォーム後】2階11帖の洋室です。 クロス張替えで綺麗になりました。将来、分割できるようにドア、窓、収納左右それぞれに設置してあります。
【リフォーム後】 2階キッチンです。 クロス張替え、キッチンコンロ交換で綺麗になりました。 対面式キッチンで家族との会話を楽しみながらお料理ができますね。
住宅街に並ぶ一邸!シンプルな外観とアクセントの色遣いが一層の高級感を演出しています!
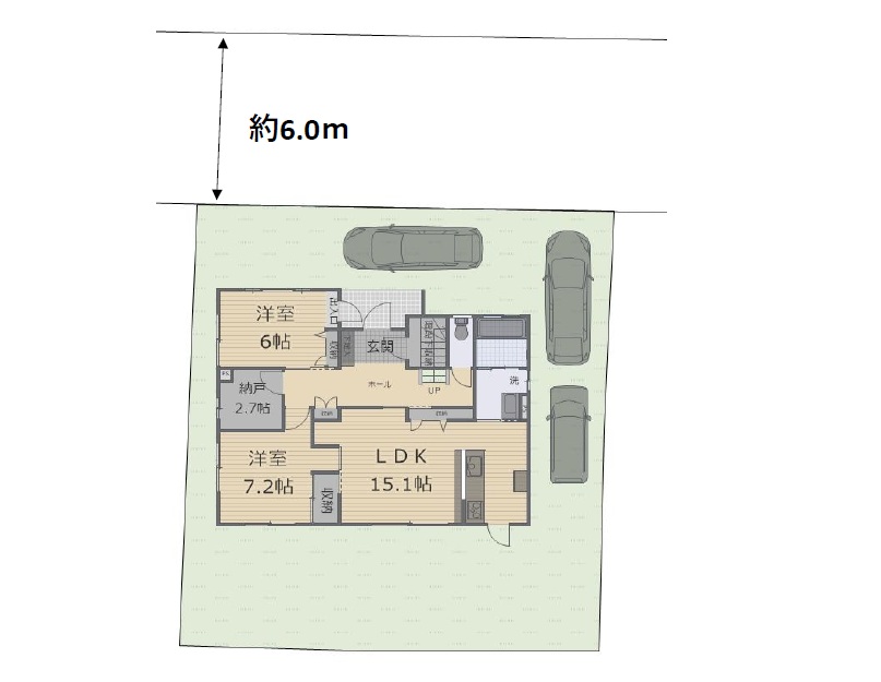
【駐車場のイメージ図です】 3台駐車可能です。2世帯には嬉しい台数ですね。前面道路も6mで出入庫も楽々です。
住友林業施工の2世帯住宅です。1階は上下の移動がなく過ごしやすいご両親世帯に。2階は若い世帯向きの2LDKになっています。
「お客様への3の約束」2年間保証があるので安心!誠実敏速に対応いたします。
買取り
無料査定/
お問い合わせ
弊社の
新型コロナ
対策について
夢に寄り添う
あなたを
求めています /求人情報