-
備考:【内覧会開催】【内装外装リノベ済み】【すぐ住めます】
古さを魅力に変える、プロのリフォーム~暮らしに新しい彩りをプラスします~
売主直販\毎日予約制内覧会開催(当日予約OK)/
※週末は混み合うため事前予約をおすすめします
◯おすすめポイント◯
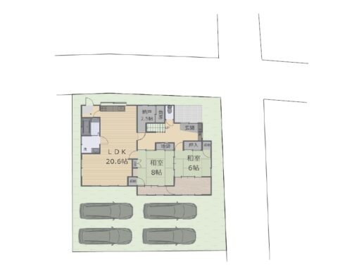
・土地約72坪、建物約44坪のゆとりある生活
・内外装リフォームで綺麗になります
・北東角地で建物南側に駐車場と庭があるので陽当り良好です
・駐車場並列2台確保(最大4台まで拡張可能)
◯リフォーム内容◯
・外壁塗装
・防蟻工事
・壁天井クロス張替え
・畳表替え、襖張替、障子張替
・照明器具交換
・新規フェンス設置
・ハウスクリーニング 等
追加工事等ご相談承ります。
(1)構造上主要な部分の不具合(床下の腐食、建物の傾き等)
(2)給排水管の故障 漏水
(3)雨漏りについてお引渡しから2年間の保証があるので安心、誠実敏速に対応します。
※シロアリ防除工事施工保証は、施工後5年間保証します。 -
所在地 栃木市片柳町 土地面積 239.78(㎡)/ 72.53(坪) 建物面積 147.39(㎡)/ 44.59(坪) 築年月 1975年7月 構造・間取り 木造セメント瓦ぶき2階建 / 4SLDK 種類 居宅 現況・引き渡し 空家 / 相談 設備・駐車場 公営水道, 本下水, 個別LPG / 駐車場あり 都市計画・用途地域 市街化区域 / 1種低層 建蔽容積・容積率 40% / 60% 取引態様 売主
【リビング家具イメージ画像】 実際のリビング写真に家具配置をイメージしたCG画像です(実際には家具照明付きません) インテリアのイメージにご参照ください。
【ただいま外壁塗装中です】 きちんと足場を組んで外壁塗装致します。 新築同様に生まれ変わります♪リフォーム中の見学もお待ちしております。
気になる方はお気軽にお問合せください。お待ちしております。
【駐車場イメージ図】 並列2台駐車可能、増設工事で最大4台まで拡張可能です。 増設工事のご相談もお待ちしております。
【リフォーム後】 クロス張替え、CF上張りで綺麗になりました。キッチンはクリーニングしました。ヴィンテージ感漂う木目調のアクセントクロスはどんな家具とも相性ぴったりです。
【リフォーム後】 畳表替え、襖・障子張替えで綺麗になりました。1階和室は6帖と8帖が繋がる落ち着きのある雰囲気です。縁側があり明るい陽が差し込みます。
【リフォーム後】 クロス張替え、CF上張りで綺麗にしました。昭和レトロと現代が融合した、モダンな玄関になりました。
【リフォーム後】 クロス張替え、CF上張りで綺麗になりました。ヴィンテージ感漂う木目調のアクセントクロスはどんな家具とも相性ぴったりです。
【リフォーム後】 クロス張替え、CF上張りで綺麗になりました。ヴィンテージ感漂う木目調のアクセントクロスはどんな家具とも相性ぴったりです。
【リフォーム後】 畳表替え、襖・障子張替えで綺麗になりました。2階8帖和室は押入れが2箇所あり、たくさん物がしまえるので部屋がスッキリします。
【リフォーム後】 クロス張替えで綺麗になりました。 2階10帖洋室は主寝室として利用できる十分な大きさです。しっかり収納も付いていますよ。
【リフォーム後】 クリーニングして綺麗になりました。お風呂は17年前に新品交換後ほとんど使っていないので綺麗です。
【リフォーム後】 クロス張替え、CF上張りで綺麗になりました。洗面台は17年前に新品交換後ほとんど使っていないので綺麗です。
【リフォーム後】 クロス張替え、CF上張り、クリーニングして綺麗になりました。トイレは17年前に新品交換後ほとんど使っていないので綺麗です。
【リフォーム後】 クロス張替え、CF上張りで綺麗にしました。玄関ホールは広く北側でも明るい陽が入る設計です。
「お客様への3の約束」 (1)構造上主要な部分の不具合(床下の腐食、建物の傾き等) (2)給排水管の故障 漏水 (3)雨漏りについてお引渡しから2年間の保証があるので安心、誠実敏速に対応します
【外壁塗装したイメージ画像です】 今流行りのダークグレーで塗装したイメージです。※仕上がりと異なる場合がございます
【外観イメージ画像です】外壁塗装完了しました。京都風の格子が映える、ブラック外壁の和モダン住宅はいかがでしょう。70坪超えの広々土地に建つ大きな邸宅です。小中学校徒歩圏内で子育て環境に最適!スーパーも